Let Agreed
£3,276 pcm

(£108pppw) 81 Warwick Street, Heaton, Newcastle upon Tyne, NE6

  • Ref: FP1373
  • Type: Flat
  • Availability: Let Agreed
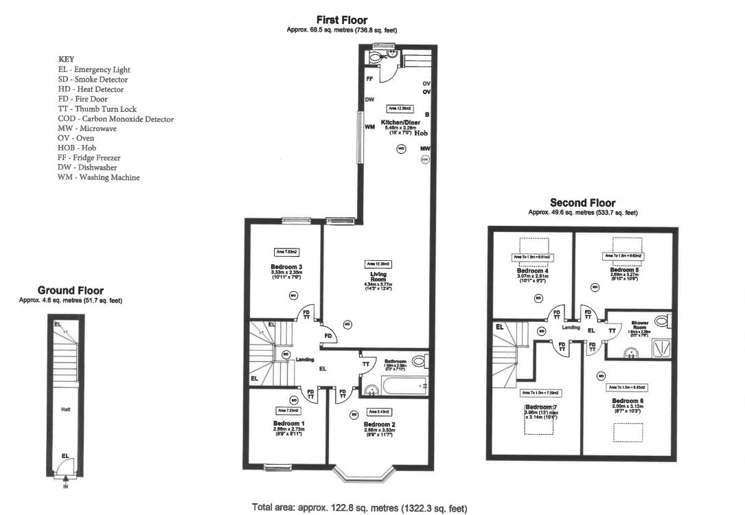
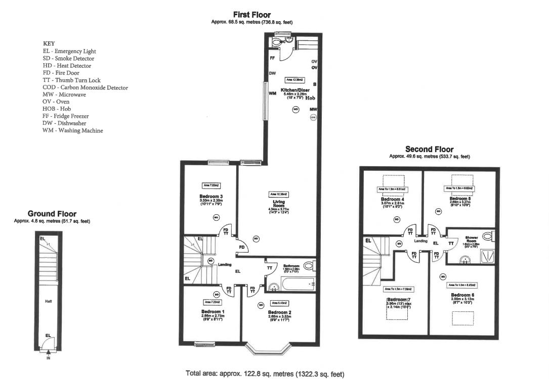
  • Bedrooms: 7
  • Bathrooms: 2
  • Reception Rooms: 1
  • Council Tax Band: A
  • Furnished: Furnished
  • Deposit: £3,276
  • Available: 09/07/2026
Available: July 2026 - Bricks & Mortar are delighted to present this stunning seven-bedroom maisonette in Newcastle’s picturesque Heaton suburb, ideally located for easy access to the City Centr...

Key Features

  • Available: July 2026
  • Amazing Kitchen
  • Video viewing available
  • Sociable living/dining area
  • Seven good sized bedrooms
  • Two beautifully designed bathrooms
  • Close proximity to both universities
  • Close to local amenities and transport links
  • Bills package available
  • Very popular property


Full property description


Available: July 2026 - Bricks & Mortar are delighted to present this stunning seven-bedroom maisonette in Newcastle’s picturesque Heaton suburb, ideally located for easy access to the City Centre and both universities.

The property has been beautifully upgraded and offers spacious, well-presented accommodation throughout, combining modern finishes with a comfortable, homely feel. Perfect for students seeking stylish and convenient living in one of the city’s most popular areas.

Disclaimer – These particulars are for guidance only and do not form part of any contract. Whilst care has been taken in their preparation, we do not hold ourselves responsible for any inaccuracies. They are issued on the understanding that all negotiations will be conducted through this company.

Bricks & Mortar Group Give Notice That;- 1. These particulars do not constitute any part of an offer or a contract. 2. All statements contained in these particulars to this property are made without responsibility on the part of the Agents or the Vendor/Lessor. 3. None of the statements contained in these particulars as to this property are to be relied on as statements or representations of fact. 4. The particulars, various plans, photographs, descriptions and measurements have been carefully prepared,but their accuracy is not guaranteed and any intending Purchasers/Lessees shall satisfy themselves by inspection or otherwise as to their correctness. No omission, accidental error or misdescription shall be a ground for a claim neither for compensation nor the recession of the Contract by either the Vendor/Lessor or the Purchaser/Tenant. 5. Neither the Vendor/Lessor nor Bricks & Mortar Group nor any person in employment has any authority to make or give any representation or warranty in relation to the property. 6. The copyright of all details, photographs and floorplans remain exclusive to Bricks & Mortar Group and no third party shall use these without express written consent by the company.



floorplan

EPCEPC

Get in touch

Bricks & Mortar
140 Newbridge Street,
Newcastle upon Tyne,
NE1 2SZ

Try our calculators

Rental Affordability Calculator

Similar Properties

  • (£95pppw) Leazes Park Road, City Centre, NE1

    £2,882 pcm
    Let Agreed
    Available: September 2026 - Bricks & Mortar are delighted to present this impressive seven-bedroom, three-bathroom triplex apartment in the heart of Newcastle City Centre. Perfectly designed for students, the property offers spacious and modern living just a short walk from both Newcastle and No...
    7 Bedrooms
    3 Bathrooms
    1 Reception
  • (£120pppw) 9b St James Street, City Centre, Newcastle upon Tyne, NE1

    £3,640 pcm
    Let Agreed
    Available: July 2026: Bricks & Mortar are delighted to offer this outstanding seven-bedroom student house in the heart of Newcastle city centre, backing onto the iconic St James’ Park. Each bedroom features its own private ensuite, combining comfort and convenience for the ultimate student liv...
    7 Bedrooms
    7 Bathrooms
    1 Reception