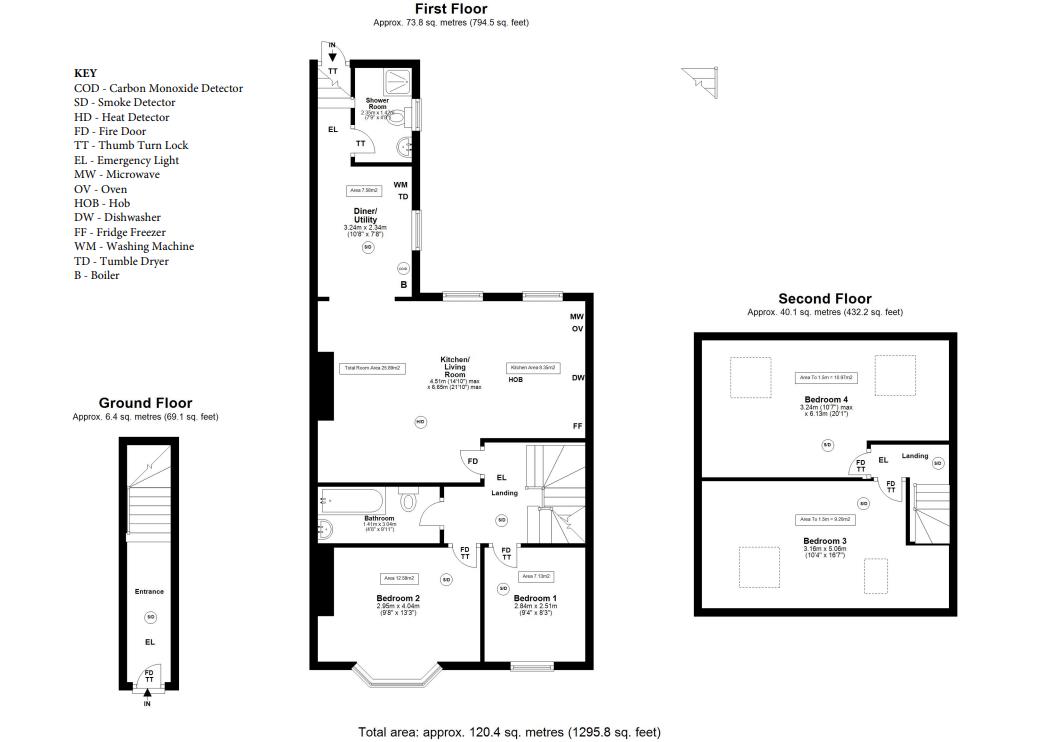
This property is furnished throughout with matching neutral furniture. The property is designed with a fresh, modern decor throughout and features a large contemporary lounge with large sofas and a spacious fully integrated kitchen with island. There are two white fitted bathrooms in the property one contains a bath and shower combination and the other contains a walk in shower facility.
There's four bedrooms in this property and they are all furnished with everything needed such as a double bed in every room, wardrobes, chest of drawers, desk & chair.
The property is situated in a highly desirable location, as the City Centre is only a fifteen minute walk away, making this an ideal spot for students, as it offers easy access to both universities
Disclaimer
These particulars are for guidance only and do not form part of any contract. Whilst care has been taken in their preparation, we do not hold ourselves responsible for any inaccuracies. They are issued on the understanding that all negotiations will be conducted through this company.
Bricks & Mortar Group Give Notice That;- 1. These particulars do not constitute any part of an offer or a contract. 2. All statements contained in these particulars to this property are made without responsibility on the part of the Agents or the Vendor/Lessor. 3. None of the statements contained in these particulars as to this property are to be relied on as statements or representations of fact. 4. The particulars, various plans, photographs, descriptions and measurements have been carefully prepared,but their accuracy is not guaranteed and any intending Purchasers/Lessees shall satisfy themselves by inspection or otherwise as to their correctness. No omission, accidental error or misdescription shall be a ground for a claim neither for compensation nor the recession of the Contract by either the Vendor/Lessor or the Purchaser/Tenant. 5. Neither the Vendor/Lessor nor Bricks & Mortar Group nor any person in employment has any authority to make or give any representation or warranty in relation to the property. 6. The copyright of all details, photographs and floorplans remain exclusive to Bricks & Mortar Group and no third party shall use these without express written consent by the company.
