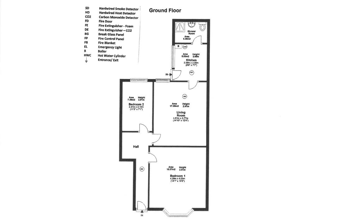
The property boasts a spacious lounge with a corner sofa and modern decoration which leads onto the recently installed kitchen. Leading from the lounge, through french doors, there is a fantastic private patio to the rear, exclusive to tenants, complete with garden furniture.
The two bedrooms are a generous size and come furnished with double beds, chest of drawers and exposed wooden flooring which really brings the room together and makes it feel that whole lot more cosier. The overall property is designed to a very high specification and combines beautiful traditional features, such as original fireplaces and stripped wooden floorboards, with a modern, contemporary design.
The property also has a spacious white tiled bathroom.
Situated in an excellent location next to Heaton Park and with the city centre only a twenty minute walk away. Ideal for students or young professionals.
Council Tax bandA
Disclaimer
These particulars are for guidance only and do not form part of any contract. Whilst care has been taken in their preparation, we do not hold ourselves responsible for any inaccuracies. They are issued on the understanding that all negotiations will be conducted through this company.
Bricks & Mortar Group Give Notice That;- 1. These particulars do not constitute any part of an offer or a contract. 2. All statements contained in these particulars to this property are made without responsibility on the part of the Agents or the Vendor/Lessor. 3. None of the statements contained in these particulars as to this property are to be relied on as statements or representations of fact. 4. The particulars, various plans, photographs, descriptions and measurements have been carefully prepared,but their accuracy is not guaranteed and any intending Purchasers/Lessees shall satisfy themselves by inspection or otherwise as to their correctness. No omission, accidental error or misdescription shall be a ground for a claim neither for compensation nor the recession of the Contract by either the Vendor/Lessor or the Purchaser/Tenant. 5. Neither the Vendor/Lessor nor Bricks & Mortar Group nor any person in employment has any authority to make or give any representation or warranty in relation to the property. 6. The copyright of all details, photographs and floorplans remain exclusive to Bricks & Mortar Group and no third party shall use these without express written consent by the company.

